Barrierefreies Bauen – DIN 18040

Nachhaltige Planung für jede Lebensphase: Barrierefreies Bauen gewährleistet anhaltenden Komfort für alle Nutzer – und ist mit Schlüter-Produkten zuverlässig im System sowie gemäß DIN 18040 realisierbar.

Auf einem Tisch ausgebreitete Grundrisszeichnungen eines mehrstöckigen Gebäudes

Barrieren reduzieren, Lebensqualität sichern

Das Thema Barrierefreiheit betrifft früher oder später alle, die im Alter selbstbestimmt in den eigenen vier Wänden leben möchten. Die generationenübergreifende Planung von Bau- oder Modernisierungsmaßnahmen ist dabei nicht nur wertsteigernd und zukunftssicher, sondern schafft ein lebenslang komfortables Umfeld für die Bewohner. Mit unseren Systemlösungen können Sie barrierefreie und rollstuhlgerechte Räume gestalten – und sich dabei selbstverständlich auf die Einhaltung weiterer Normvorgaben verlassen.

Barrierefreies Bauen nach DIN 18040

Wer in Deutschland Modernisierungsmaßnahmen oder einen Neubau für Wohnungen, Gebäude oder öffentliche Orte plant, findet in der DIN 18040 die wesentlichen Anforderungen an das barrierefreie Bauen. Ziel der Normengruppe ist es, Umgebungen so zu planen und zu bauen, dass sie von allen Menschen ohne besondere Erschwernisse und ohne fremde Hilfe genutzt werden können – unabhängig von ihren körperlichen Fähigkeiten.

Wie alle Normen stellt auch die Norm für das barrierefreie Bauen Richtlinien und Empfehlungen dar, die dann angewendet werden müssen, wenn sie als Bestandteil einer Landesbauordnung über die technischen Baubestimmungen rechtsverbindlich eingeführt sind. Die Ausführungen in den jeweiligen Landesbauordnungen können sich unterscheiden.

Aufgrund der großen Komplexität des Themengebiets sind die Inhalte dieser Seite vorrangig informativ zu verstehen und können eine kompetente Beratung durch Architekten oder Planer nicht ersetzen.

Die DIN 18040 ist in drei Teile gegliedert:

DIN 18040-1

Der erste Teil der Normengruppe regelt die barrierefreie Planung von öffentlich zugänglichen Gebäuden und deckt damit z. B. Büro-, Verwaltungs- und Gerichtsgebäude, Kultur- und Bildungseinrichtungen, Sport-, Gast- und Beherbergungsstätten, Verkaufsräume sowie Toilettenanlagen ab.

Die DIN 18040-1 ersetzt seit Oktober 2010 die DIN 18024-2.

DIN 18040-2

Der zweite Teil der Normengruppe ist die Planungsgrundlage für Barrierefreiheit in privaten Wohnungen sowie Gebäuden mit Wohnungen. Die Anforderungen für Wohnungen unterscheiden dabei zwischen

  1. barrierefrei nutzbaren Wohnungen und
  2. barrierefrei und uneingeschränkt mit dem Rollstuhl nutzbaren Wohnungen,

wobei die barrierefreie Ausführung mit geringeren Anforderungen verbunden ist als die rollstuhlgerechte Ausführung.

Die DIN 18040-2 ersetzt DIN 18025-1 und 18025-2.

DIN 18040-3

Der dritte Teil der Normengruppe regelt die Planungsgrundlagen für den öffentlichen Verkehrs- und Freiraum und deckt damit beispielsweise Straßen, Plätze, Parkanlagen und Friedhöfe ab. Bestandteil sind u.a. Maße für benötigte Verkehrsräume, Grundanforderungen zur Information und Orientierung sowie Anforderungen an Oberflächen, Mobiliar oder Wegeketten.

Die DIN 18040-3 ersetzt seit Dezember 2014 die DIN 18024-1.

Vorgaben nach DIN 18040-2 (Auszug)

  Bewegungsflächen: Vor WC, Waschbecken oder Badewanne 1,20 m x 1,20 m für die barrierefreie Ausführung bzw. 1,50 x 1,50 m für die rollstuhlgerechte Ausführung.

  Duschfläche: 1,20 m x 1,20 m für die barrierefreie Ausführung bzw. 1,50 x 1,50 m für die rollstuhlgerechte Ausführung.

  Uneingeschränktheit: Bewegungsflächen dürfen sich überlagern, aber nicht durch hineinragende Elemente wie z. B. Mauervorsprünge oder Heizkörper eingeschränkt werden.

  Bodenbelag: Fest verlegt und mit rutschhemmender Oberfläche, für sehbehinderte Menschen visuell kontrastierend.

  Dusche: Niveaugleich oder mit höchstens 2 cm abgeschrägtem Höhenunterschied zum angrenzenden Bodenbereich. Für die rollstuhlgerechte Ausführung müssen ein Dusch-Klappsitz sowie hochklappbare Stützgriffe nachrüstbar und die Einhebel-Duscharmatur mit Handbrause aus der Sitzposition erreichbar sein.

  Türen: Nach außen öffnend und von außen entriegelbar. Höhe mindestens 2,05 m, Breite mindestens 80 cm für barrierefreie bzw. 90 cm für rollstuhlgerechte Ausführung.

  Fenster: Leicht zu öffnen und zu schließen, für die rollstuhlgerechte Ausführung Fenstergriffhöhe zwischen 85 und 105 cm gemessen ab Oberkante Fertigfußboden (OFF).

  Griff- und Bedienhöhen: Elemente wie z. B. Handgriffe, Schalter, Thermostate oder Türklinken in einer Höhe von 85 cm über OFF.

  Wände: Ausreichend stabil, um mit senkrechten sowie waagerechten Stütz- bzw. Haltegriffen neben dem WC sowie im Bereich der Dusche und der Badewanne
nachgerüstet werden zu können.

  Waschplatz: Im Stehen wie im Sitzen nutzbar, mit Spiegel unmittelbar über dem Waschbecken und möglichst Einhebelarmaturen. Für rollstuhlgerechte Ausführung zusätzlich Vorderkante in Höhe von maximal 80 cm über OFF, Unterfahrbarkeit von mindestens 55 cm Tiefe und 90 cm Breite, Abstand der Armatur zum vorderen Rand höchstens 40 cm.

  WC: Seitlich mindestens 20 cm Abstand zur Wand sowie anderen Sanitärobjekten. Für rollstuhlgerechte Ausführung u. a. definierte Höhe von 46-48 cm über OFF, Bewegungsflächen für Hilfspersonen, Stütz- und Haltegriffe, erreichbare Spülung und Toilettenpapierhalterung.

Hinweis

Die DIN 18040 ist noch nicht an die europäische Norm DIN EN 17210 - Barrierefreiheit und Nutzbarkeit der gebauten Umwelt – angepasst, eine Überarbeitung aller drei Normenteile ist momentan in der Bearbeitung des Normenausschusses.

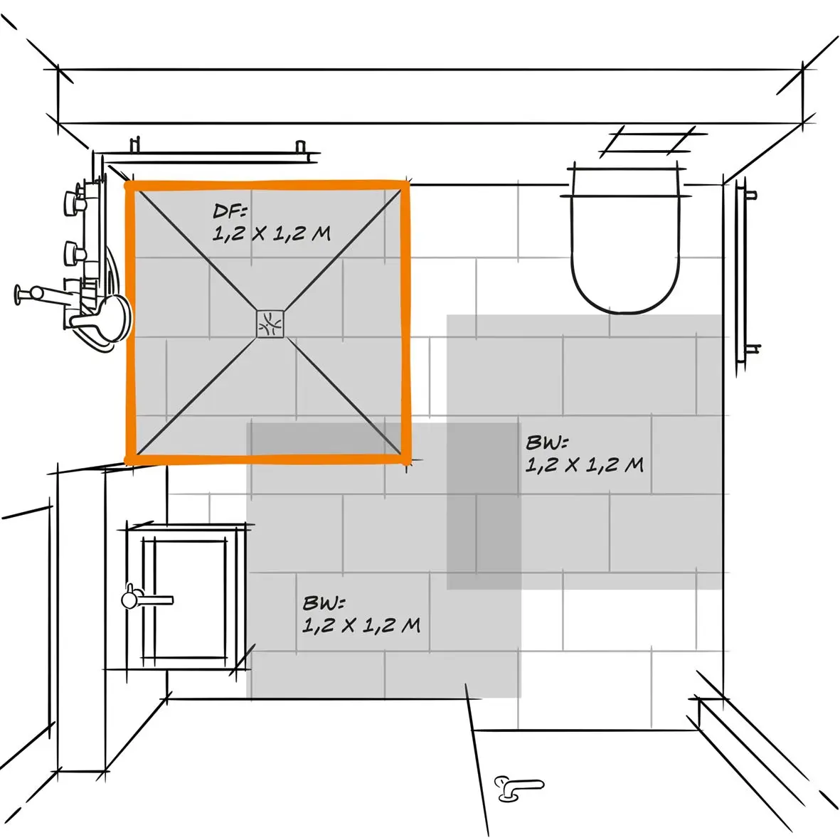
Überlagerung von Bewegungsflächen

Die barrierefreie Lösung setzt im privaten Wohnraum eine Anwendung der Schutzziele der DIN 18040-2 voraus, was wiederum eine gewisse Raumgröße und Raumgeometrie erforderlich macht. Allein die vorgegebenen Bewegungsflächen vor Sanitärobjekten (WC, Waschtisch) sowie in der Dusche nehmen nach barrierefreiem (bf) Standard jeweils 1,2 m x 1,2 m bzw. nach rollstuhlgerechtem (bfR) Standard 1,5 m x 1,5 m ein. In der Neubauplanung finden diese Anforderungen meist Berücksichtigung, bei Planungen im Bestand können sie aber nicht immer vollumfänglich erfüllt werden. In diesem Fall kann eine Abweichung von der DIN 18040-2 zu einer barrierereduzierten (br) Ausführung sinnvoll sein.

Barrierefreie (bf), rollstuhlgerechte (bfR) und barrierereduzierte (br) Grundrissbeispiele

Grundriss eines barrierefrei geplanten Badezimmers © Schlueter-Systems
Barrierefrei geplantes Badezimmer mit überlagerten Bewegungsflächen im geforderten Maß von 1,2 x 1,2 m.
Grundriss eines rollstuhlgerecht geplanten Badezimmers © Schlueter-Systems
Rollstuhlgerecht geplantes Badezimmer mit den geforderten Bewegungsflächen von 1,5 x 1,5 m.
Grundriss eines barrierereduziert geplanten, kleinen Badezimmers © Schlueter-Systems
Barrierereduzierte Planung in Anlehnung an die Norm mit überlagerten Bewegungsflächen und schmalerem Duschbereich.

Barrierereduzierte Ausführung als Alternative im Bestand

Insbesondere bei Umbaumaßnahmen kann eine alternative Ausführung in Anlehnung an die DIN 18040-2 die zielführendere Lösung sein, um den Bedürfnissen der Bewohner dennoch gerecht zu werden. In diesem Fall spricht man oft von einer barrierereduzierten (br) Gestaltung, deren Ziel zwar der Abbau von Barrieren ist, deren Ergebnis aber aufgrund der baulichen Gegebenheiten nicht alle Kriterien für Barrierefreiheit oder Rollstuhltauglichkeit erfüllen kann.

Unsere Arbeitshilfen geben Unterstützung bei der Umsetzung von barrierereduzierten Lösungen in Anlehnung an die DIN 18040-2, um Planern, Verarbeitern und Beratern bei der Planung generationengerechter Bäder auch in kleinen Räumen zu helfen.

Barrierereduziertes (br) Bad auf engstem Raum: Modernisierungsbeispiel

Praktisch ist, was funktioniert – insbesondere beim Umbau existierender Räume. Wenn allein aufgrund des vorhandenen Grundrisses kein normgerechter Standard möglich ist, sind kreative Ideen gefragt, um auch im kleinen Bad benutzerfreundliche Lösungen zu bieten. Unser Beispiel zeigt ein Badezimmer in barrierereduzierter (br) Ausführung in Anlehnung an die DIN 18040-2 mit reduziertem Gefällebereich und Punktentwässerung auf einer Duschfläche von 0,9 x 1,2 m, die nahtlos zu den angrenzenden Bewegungsflächen übergeht.

Grundriss eines barrierereduziert geplanten Badezimmers mit überlagernden Bewegungsflächen © Schlueter-Systems

Herausfordernde Modernisierung

Das kleine Badezimmer soll so umgebaut werden, dass es langfristig den größtmöglichen Komfort gewährleistet. Das ist durchaus möglich, wenn die Bewegungsflächen überlagernd und ohne einschränkende Bauelemente geplant werden.

Barrierereduziertes Bad in der Rohbausituation von oben © Schlueter-Systems

Zuverlässig abgedichtet

Bewegungsflächen, Wandnische sowie der nach außen öffnende Türdurchgang wurden normgerecht abgedichtet. Statt Heizkörpern wurde eine Wandheizung installiert.

Barrierereduziertes Bad von oben mit WC, ebenerdiger Dusche und Waschtisch © Schlueter-Systems

Langfristig nutzbar

Die ebenerdige Duschfläche wird über einen Punktablauf entwässert und kann durch einen Vorhang abgetrennt werden.

Systemprodukte für normgerechtes barrierefreies Bauen

© Schlueter-Systems

Die relevante DIN-Norm (18040-1 in öffentlichen bzw. 18040-2 in privaten Räumen) findet ergänzend zu vielen anderen Richtlinien Anwendung, die im Zuge jedes Bauprojekts berücksichtigt werden müssen: Etwa mit Blick auf Statik und Brandschutz, aber auch auf Schallschutz (DIN 4109) und Abdichtung (DIN 18534). Letzteres ist besonders in Feuchträumen von Bedeutung. Eine vorausschauende Grundrissplanung ist also ebenso erforderlich wie eine Kenntnis der Auswirkung dieser Planung auf den gesamten Baukörper.

Hier setzen wir bei Schlüter-Systems an: Unsere Systemprodukte für barrierefreies Bauen sind bereits aufeinander abgestimmt und erfüllen verschiedene relevante Normen für ihren jeweilige Anwendungsbereich. So lassen sich Wohnräume planen und errichten, die schnell an veränderte Bedürfnisse angepasst werden können und eine komfortable Nutzung in jeder Lebensphase ermöglichen.

Schlüter-TREP-V

Hell gefliestes Treppenhaus mit kontrastierendem schwarzen Abschlussprofil Schlüter-TREP-V auf der ersten Stufe © Schlueter-Systems

Das Treppenprofil zur sicheren Herstellung von barrierefreien Stufenkanten mit kontrastierender Stufenmarkierung nach DIN 18040.

Die Rutschhemmung der Profileinlagen von Schlüter-TREP-V ist nach DIN EN 16165 geprüft und als R10 klassifiziert. Für eine regelkonforme Kontrastierung der Treppenanlage nach DIN 32975 ist die Farbe der Profileinlage mit einem Kontrastwert (K) von mindestens 0,4 zum Bodenbelag zu wählen.

Schlüter-KERDI-CID

Nach außen öffnender, mit Schlüter-KERDI-CID abgedichteter Türdurchgang eines Badezimmers © Schlueter-Systems

Die Andichtungs-Sets ermöglichen die Kapillarunterbrechung am Boden für normgerecht abgedichtete Türdurchgänge nach DIN 18534.

Schlüter-KERDI-CID lässt sich als barrierefreie Lösung gemäß DIN 18040 für den niveaugleichen Übergang im Türbereich mit nach außen öffnenden Türen umsetzen.

Schlüter-KERDI-SHOWER

Schichtaufbau einer ebenerdigen Dusche mit Punktabfluss, Abdichtung und Gefälleboard © Schlueter-Systems

Befliesbare Duschelemente aus druckstabilem Polystyrol für die Herstellung eines ausreichenden Gefälles zur Entwässerung in bodengleichen Duschen.

Für barrierefreie (bf) bzw. rollstuhlgerechte (bfR) Duschen nach DIN 18040 ist das Gefälleboard mit zentraler Punktentwässerung (KERDI-SHOWER-T) in der für die erforderliche Bewegungsfläche passenden Größe zu wählen: mind. 1,2 m x 1,2 m (bf) bzw. 1,5 m x 1,5 m (bfR).

Schlüter-KERDI-DRAIN

dunkel geflieste Dusche mit Schlüter-KERDI-DRAIN Duschablauf © Schlueter-Systems

Die Punktentwässerung für einen zentralen Duschablauf ermöglicht den mehrseitigen bodengleichen Zugang zur Dusche und ist daher die erste Wahl bei der Herstellung barrierefreier und rollstuhlgerechter Duschanlagen nach DIN 18040.

Schlüter-KERDI-LINE

© Schlueter-Systems

Die bewährte Linienentwässerung mit herausnehmbarer Abdeckung in verschiedenen Designs kann nach DIN 18040 im privaten wie auch im öffentlich Bereich eingesetzt werden. Die werkseitig umlaufende Dichtmanschette dient der Aufnahme von Verbundabdichtungen gemäß DIN 18534.

Schlüter-KERDI-LINE-VARIO

Ebenerdige Dusche mit Entwässerungsrinne Schlüter-KERDI-LINE-VARIO © Schlueter-Systems

Auch diese Linienentwässerung ist nach DIN 18040 im privaten wie öffentlichen Bereich einsetzbar und erfüllt die Anforderungen zur Aufnahme von Verbundabdichtungen gemäß DIN 18534. Das Ablaufgehäuse und die glattwandigen Grundkörper ohne Toträume gewährleisten darüber hinaus beste Hygieneeigenschaften.

Schlüter-KERDI-BOARD-WS

Wandhängender, unterfahrbarer Waschtisch aus Schlüter-KERDI-BOARD © Schlueter-Systems

Mit dem vormontierten Set aus unserer universellen Verlegeplatte ist die Herstellung rollstuhlgerecht unterfahrbarer Waschtische nach DIN 18040 möglich. KERDI-BOARD ist bauaufsichtlich als Verbundabdichtung nach DIN 18534 zugelassen und erlaubt eine individuelle Raumgestaltung ganz nach persönlichen Wünschen.

Schlüter-KERDI-BOARD-N

Geflieste Wandnische mit Schlüter-KERDI-BOARD © Schlueter-Systems

Die vorgefertigten Nischensets aus KERDI-BOARD schaffen innenliegende Ablageflächen an gefliesten Wänden – ohne die nach DIN 18040 vorgegebenen Bewegungsflächen in barrierefrei oder rollstuhlgerecht geplanten Räumen einzuschränken. Sichere Abdichtung nach DIN 18534 inklusive.

Schlüter-KERDI-BOARD-NLT

Beleuchtete Nische in einem gefliesten Duschbereich © Schlueter-Systems

Diese Nischensets beinhalten zusätzlich zu den Elementen aus KERDI-BOARD passende LIPROTEC-LED-Technik zur Beleuchtung der Ablageflächen. Auch hier wird die Bewegungsfläche nach DIN 18040 konstruktionsbedingt nicht eingeschränkt sowie die normgerechte Abdichtung nach DIN 18534 gewährleistet.

Schlüter-DESIGN-NICHE

Schwarz beschichtete Wandnischen über einer Badewanne © Schlueter-Systems

Die pulverbeschichteten Einbauelemente können nicht nur im Nassbereich, sondern im ganzen Haus verbaut werden – und werden bei wandbündiger Installation den Anforderungen der DIN 18040 gerecht. Sichere Abdichtung nach DIN 18534 inklusive.

Schlüter-BEKOTEC-THERM

Wohnraum mit sichtbaren Schichten in der Fußbodenkonstruktion inkl. BEKOTEC-THERM Fußbodenheizung © Schlueter-Systems

Wassergeführte Fußbodenheizungen sind aus nach DIN 18040 geplanten Räumen nicht mehr wegzudenken: Sie sorgen für angenehme, gleichmäßige Wärme, ohne die geforderten Bewegungsflächen einzuschränken.

Schlüter-DITRA-HEAT-E

Gefliester Wohnraum mit elektrischer DITRA-HEAT-E Flächenheizung in Wand und Boden © Schlueter-Systems

Die elektrische Flächenheizung für Wände und Böden erlaubt den Verzicht auf Heizkörper und erwärmt den Wohnraum, ohne die nach DIN 18040 geforderten Bewegungsflächen einzuschränken.